Trong vô vàn các mẫu nhà cấp 4, thiết kế nhà cấp 4 6×15 3 phòng ngủ vẫn luôn được lòng đại đa số gia đình Việt. Chúng có gì đặc biệt? Hãy cùng chúng tôi tìm hiểu chi tiết hơn qua bài viết dưới đây nhé.
Ưu điểm nổi bật nhà cấp 4 6×15 3 phòng ngủ
Nhà cấp 4 3 phòng ngủ kích thước 6x15m là một trong những mẫu nhà phổ biến và được ưa chuộng nhất thời gian qua. Nhờ vào lối kiến trúc đơn giản nên thời gian thi công được rút ngắn tối đa, từ đó gia chủ sẽ nhanh chóng có thể dọn vào nhà mới sớm hơn.

Với diện tích 6x15m, việc thiết kế nhà ở không yêu cầu quá cao về kỹ thuật phức tạp, cầu kỳ nên điều này giúp gia chủ tiết kiệm một khoản chi phí đáng kể.
Nhà cấp 4 3 phòng ngủ 6×15 rất đa dạng về phong cách thiết kế nên chúng có khả năng đáp ứng nhiều yêu cầu, sở thích và mục đích sử dụng của mỗi gia đình khác nhau. Chính vì lẽ đó, đây là mẫu thiết kế mà bạn không nên bỏ qua.
Tổng hợp các mẫu nhà cấp 4 6×15 3 phòng ngủ đẹp nhất hiện nay
Bạn đang tìm kiếm một mẫu nhà cấp 4 3 phòng ngủ kích thước 6×15 vừa có tính thẩm mỹ, vừa đáp ứng nhu cầu sử dụng của cả gia đình. Vậy thì hãy tham khảo một số phương án thiết kế dưới đây nhé.
Mẫu nhà cấp 4 6×15 3 phòng ngủ mái thái
Mẫu nhà cấp 4 mái thái là mẫu nhà rất được ưa chuộng cả ở nông thôn lẫn thành thị. Đây là sự kết hợp vô cùng hoàn hảo giữa giá trị thẩm mỹ và công năng sử dụng.
Kiểu dáng mái có độ dốc cao làm cho ngôi nhà trở nên khang trang, sang trọng. Cũng nhờ thiết kế độ dốc cố định như vậy giúp việc thoát nước và chống thấm đạt hiệu quả cao hơn. Từ đó chúng giúp bảo vệ chất lượng cũng như kéo dài tuổi thọ ngôi nhà tăng lên đáng kể.

Mẫu nhà cấp 4 6×15 3 phòng ngủ mái nhật
Nhà mái nhật cũng là xu hướng thiết kế được ưa chuộng nhờ vào vẻ đẹp sang trọng, đẳng cấp mà chúng mang lại.
Độ dốc của phần mái tuy không cao như mái thái nhưng chúng vẫn đảm bảo khả năng thoát nước tốt, đạt hiệu quả tối đa. Không những thế, lối kiến trúc này cũng đem lại cảm giác gần gũi và yên bình cho căn nhà của bạn.

Mẫu nhà cấp 4 6×15 3 phòng ngủ mái bằng
Khác hoàn toàn với mẫu nhà mái thái hay nhà mái nhật, thiết kế nhà cấp 4 mái bằng 3 phòng ngủ kích thước 6x15m vẫn thu hút nhiều chủ nhà bởi nét hiện đại, sang trọng của nó.
Mẫu nhà này thường thể hiện sự kiên cố, vững chắc thông qua lối kiến trúc khối hộp. Thiết kế không quá phức tạp, nhiều hoạ tiết trang trí nhưng chúng vẫn đảm bảo đạt đến “đỉnh cao” trong tính thẩm mỹ kiến trúc nhà ở mà bạn không thể bỏ qua.

Mẫu nhà cấp 4 6×15 3 phòng ngủ phong cách hiện đại
Với kích thước 6x15m, phong cách hiện đại luôn là xu hướng thiết kế lý tưởng góp phần tạo nên vẻ đẹp hoàn mỹ nhất cho ngôi nhà cấp 4 3 phòng ngủ.
Căn nhà sở hữu gam màu trắng tươi sáng, kết hợp với các chất liệu như kính, nhôm, sắt, thép,… giúp đánh lừa thị giác người nhìn đem lại cảm giác rộng rãi, thoáng đãng hơn rất nhiều.

Mẫu nhà cấp 4 6×15 3 phòng ngủ có gara ô tô
Hiện nay, các gia đình hầu hết đều sở hữu một chiếc ô tô để phục vụ nhu cầu đi lại của mình. Tuy nhiên, khi xây dựng nhà ở, điều khiến chủ nhà còn lo lắng chính là không biết nên để xe ở đâu. Vậy thì mẫu nhà cấp 4 3 phòng ngủ rộng 6x15m có gara chính là giải pháp tối ưu dành cho bạn.
Thông thường, gara sẽ được đặt ở bên hông hoặc phía trước ngôi nhà. Chúng có thể thiết kế riêng biệt hoặc tích hợp vào tổng thể công trình nhằm đáp ứng nhu cầu bảo vệ và bảo quản ô tô được hiệu quả nhất.

Mẫu nhà cấp 4 6×15 3 phòng ngủ có gác lửng
Để tăng thêm không gian sử dụng trong nhà, mẫu nhà cấp 4 có gác lửng chính là sự lựa chọn hoàn hảo dành cho bạn. Thiết kế tầng lửng thường được bố trí hệ thống phòng ngủ, phòng thờ hoặc gia chủ có thể thêm bất kỳ phòng chức năng nào khác theo nhu cầu sử dụng của gia đình mình đều thích hợp.

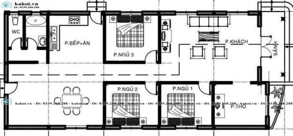
Bản vẽ nhà cấp 4 6×15 3 phòng ngủ
Sau đây là một số bản vẽ nhà cấp 4 6x15m có 3 phòng ngủ dành cho bạn tham khảo để có sự bố trí công năng khoa học, hợp lý nhất cho ngôi nhà tương lai của mình.




Xây nhà cấp 4 6×15 3 phòng ngủ có đắt không?
Xây nhà cấp 4 3 phòng ngủ rộng 6x15m hết bao nhiêu tiền? Tuỳ vào từng đơn vị nhà thầu họ sẽ gửi đến khách hàng bảng báo giá xây nhà chi tiết nhất. Ngoài ra, chi phí làm nhà cũng cần dựa vào rất nhiều yếu tố quyết định như diện tích và vị trí xây dựng, phong cách thiết kế, giá nhân công, giá vật liệu xây dựng,…
Tại Kakoi, quý khách có thể sử dụng dịch vụ xây nhà trọn gói với mức giá chỉ từ 7.000.000đ/m2 để tiết kiệm thời gian, chi phí và công sức của mình. Bên cạnh đó, nếu bạn chỉ muốn thiết kế công trình thì chỉ từ 150.000đ/m2, chúng tôi đảm bảo sẽ mang đến khách hàng một bản thiết kế nhà cấp 4 6x15m 3 phòng ngủ ưng ý nhất.
Lưu ý khi xây dựng nhà cấp 4 6×15 3 phòng ngủ
Để có một không gian sống trọn vẹn, một ngôi nhà hoàn hảo nhất thì gia chủ nên lưu ý một số vấn đề sau đây.
Lựa chọn phong cách thiết kế
Phong cách thiết kế là yếu tố quyết định tính thẩm mỹ căn nhà. Đối với diện tích 6×15, bạn có thể tham khảo một số xu hướng thiết kế như hiện đại, tối giản để tạo nên sự rộng thoáng trong không gian sống của mình.
Lựa chọn vật liệu xây dựng
Trên thị trường hiện nay có rất nhiều loại vật liệu xây dựng với mức giá khác nhau cho khách hàng chọn lựa. Phụ thuộc vào khả năng tài chính mỗi chủ đầu tư mà đơn vị cung cấp sẽ đư ẩ những dòng sản phẩm phù hợp nhất với gia chủ.
Tuy nhiên, để đảm bảo sự chắc bền cho ngôi nhà theo thời gian. Bạn cũng không nên ham rẻ mà quên mất đánh giá chất lượng vật liệu xây dựng. Hãy tham khảo thật kỹ các loại vật liệu để có sự lựa chọn sáng suốt nhất nhé.

Dự trù kinh phí
Chi phí xây dựng là yếu tố quan trọng trong quá trình làm nhà. Để gia chủ dễ dàng nắm chắc các hạng mục thi công, đầu ra vào đầu vào của số lượng vật liệu xây dựng cũng như khắc phục tối đa chi phí phát sinh không mong muốn thì việc lập một bảng dự trù kinh phí là thiết yếu. Chính vì vậy, khi có kế hoạch xây nhà, bạn đừng bỏ qua yếu tố này nhé.
Lựa chọn nhà thầu uy tín
Muốn công trình nhà ở của mình có thể xây dựng theo đúng bản vẽ vừa đẹp vừa chất lượng thì một nhà thầu uy tín, chuyên nghiệp sẽ giúp bạn thực hiện hoá điều này. Gia chủ nên tham khảo các đơn vị thi công trên mạng và xem xét những đánh giá từ phía khách hàng đã sử dụng dịch vụ để từ đó có thể lựa chọn cho mình nhà thầu tốt nhất.
Đơn vị thiết kế thi công nhà cấp 4 6×15 3 phòng ngủ uy tín
Với hơn 10 năm kinh nghiệm trong nghề, Kakoi tự hào là một trong những đơn vị thiết kế thi công nhà ở uy tín và chất lượng nhất hiện nay. Chúng tôi luôn đặt toàn bộ tâm huyết của mình vào từng ngôi nhà để đảm bảo chủ đầu tư sẽ có một không gian sống hoàn hảo, trọn vẹn nhất.

Đến với Kakoi, khách hàng sẽ được làm việc với đội ngũ kiến trúc sư dày dặn kinh nghiệm, được đào tạo bài bản cùng gu thẩm mỹ cao. Từ đó, họ sẽ luôn đưa ra những phương án thiết kế vừa có giá trị thẩm mỹ, vừa đầy đủ công năng tiện nghi đáp ứng nhu cầu sống của gia chủ cũng như các thành viên trong gia đình.
Hợp đồng thiết kế thi công rõ ràng, minh bạch, công khai luôn đảm bảo quyền và nghĩa vụ giữa nhà thầu và chủ đầu tư. Do đó khách hàng cũng yên tâm hơn về chất lượng và như độ uy tín của công ty trong suốt quá trình xây dựng nhà ở.
Làm nhà là chuyện lớn và vô cùng quan trọng nên từng giai đoạn trong quá trình xây dựng cần đảm bảo tính chuyên môn cao nhất. Vì thế gia chủ luôn đặt toàn bộ tâm huyết vào ngôi nhà tương lai của mình. Để có một không gian sống trọn vẹn nhất, hãy kết nối với chúng tôi qua hotline để được phục vụ sớm nhất nhé.
