Giá trị thẩm mỹ của các mẫu biệt thự 2 tầng mái Nhật luôn được đánh giá rất cao bởi đây không chỉ là không gian sống hiện đại, tiện nghi mà các mẫu này còn sở hữu vẻ đẹp sang trọng, cuốn hút. Để quý khách có thể hiểu rõ hơn về mẫu nhà này, Kakoi xin giới thiệu mẫu biệt thự hiện đại 10x12m 2 tầng mái Nhật được đội ngũ kiến trúc sư của chúng tôi thiết kế cho gia đình anh Luân tại Quảng Ninh. Với các gia chủ yêu thích vẻ đẹp hiện đại cùng sự hoàn hảo trong từng đường nét thiết kế thì đây là một mẫu biệt thự hiện đại không thể lý tưởng hơn.
Phối cảnh 3D mẫu thiết kế biệt thự 2 tầng mái Nhật 10x12m phong cách hiện đại KKBTV221

Phía bên ngoài của mẫu biệt thự hiện đại 10x12m 2 tầng mái Nhật là hệ thống cổng và tường rào được thiết kế đầy ấn tượng. Phần cổng chính cao ráo, bề thế với cánh cổng bằng thép sơn tĩnh điện bền bỉ, chắc chắn. Bên cạnh đó là hệ thống tường rào gạch sơn màu trắng và được trang trí bằng cách ốp những khối đá tự nhiên khỏe khoắn. Ở phía trong, mẫu biệt thự đẹp toát lên vẻ thanh lịch, hiện đại và sang trọng với các hình khối kiến trúc được thiết kế vuông vắn, tỉ mỉ. Ngoài ra, không gian ngoại thất của mẫu biệt thự đẹp cũng được chú trọng vào các yếu tố như màu sắc, các loại vật liệu, chi tiết trang trí…sao cho phù hợp và đồng nhất để thể hiện được nét đẹp hiện đại, cuốn hút cho ngôi biệt thự.

Không gian ngoại thất của mẫu biệt thự biệt thự hiện đại 10x12m đẹp được sử dụng những vật liệu hiện đại trong đó phải nói đến vật liệu kính cường lực. Toàn bộ hệ thống cửa của ngôi biệt thự được ứng dụng thiết kế nhôm kính nhẹ nhàng, gọn gàng và có khả năng lấy sáng hiệu quả, giúp không gian sống của gia đình luôn tràn ngập ánh sáng tự nhiên. Hệ thống đèn LED âm trần được lắp đặt dưới các phần mái đua ra, vừa đáp ứng khả năng chiếu sáng vừa là chi tiết trang trí ấn tượng làm nổi bật không gian ngoại thất. Vì được lắp đặt âm bên trong trần nên quý khách lưu ý loại đèn này chỉ nên sử dụng với các loại trần gỗ, thạch cao hoặc trần xi măng xenlulo…Với trần bê tông thì công đoạn lắp đặt sẽ khó khăn hơn, tốn kém nhiều thời gian và công sức, đặc biệt là khi xảy ra các sự cố về điện thì cũng khá khó trong việc sửa chữa, thay mới.

Mẫu biệt thự biệt thự hiện đại 10x12m đẹp luôn thu hút trọn ánh nhìn của mọi người nhờ vẻ đẹp thanh thoát, cân đối và vô cùng nổi bật của hệ thống mái Nhật. Với thiết kế không quá cầu kỳ, ưu tiên sự tiện lợi trong công năng sử dụng, hệ mái Nhật giúp gia chủ tiết kiệm được chi phí đầu tư song vẫn đảm bảo tính thẩm mỹ cao. Từ khi được du nhập vào Việt Nam, thiết kế mái Nhật đã được kết hợp với nhiều phong cách kiến trúc khác nhau, phục vụ nhu cầu và sở thích của những khách hàng cầu toàn, tinh tế nhất.
>> Một số biệt thự 2 tầng mái bằng đẹp <<
Bản vẽ 2D mặt bằng công năng của mẫu biệt thự 2 tầng mái Nhật 10x12m KKBTV221

Tầng 1 của mẫu biệt thự đẹp có công năng sử dụng gồm 1 phòng khách ở ngay sau sảnh chính, tiếp đến phía bên trong là 2 phòng ngủ được thiết kế rộng rãi, thông thoáng. Nhà vệ sinh chung được đặt cạnh cầu thang thông tầng.

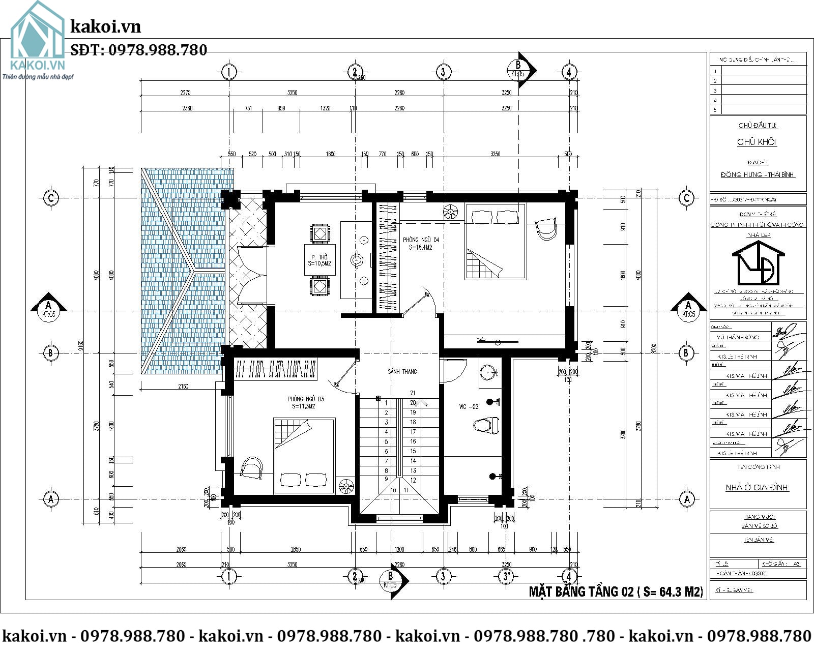
Không gian tầng 2 có công năng sử dụng gồm 1 phòng thờ trang nghiêm cùng với 2 phòng ngủ, nhà vệ sinh chung được đặt cạnh khu vực sảnh cầu thang.
Trên đây là một số thông tin về mẫu biệt thự 10x12m mái Nhật được đội ngũ kiến trúc sư Kakoi thiết kế cho khách hàng ở Quảng Ninh, hy vọng sẽ giúp quý khách có thêm những ý tưởng tham khảo cho kế hoạch xây dựng trong tương lai. Nếu quý khách có bất cứ thắc mắc gì cần được giải đáp thì hãy liên hệ với chúng tôi để được hỗ trợ tư vấn miễn phí nhé.
- Biệt thự phố 3 tầng 9x15m mái bằng đẹp KKBTV218
- Mẫu biệt thự hiện đại 3 tầng 14x15m có 2 mặt tiền siêu đẹp tại Hà Nội KKBTT008
- Mẫu biệt thự hiện đại 2 tầng mái nhật diện tích 8x11m đẹp tại Lai Châu KKBTV213
