Mẫu biệt thự đẹp hiện đại 2 tầng 13x10m 4 phòng ngủ tại Hải Phòng KKBTV207

Hiện nay, xu hướng thiết kế biệt thự hiện đại 2 tầng đang được nhiều gia chủ yêu thích và lựa chọn xây dựng cho gia đình của mình. Ưu điểm của những công trình biệt thự 2 tầng hiện đại là không chỉ có kiến trúc mặt tiền tinh tế, thời thượng mà công năng sử dụng bên trong cũng được bố trí hết sức tiện nghi, khoa học. Sự sang trọng của kiến trúc hiện đại kết hợp với những khoảng không gian xanh đầy sinh động của sân vườn chắc chắn sẽ mang đến không gian sống lý tưởng cho gia đình. Xin mời quý khách cùng tham khảo mẫu biệt thự đẹp hiện đại 2 tầng 13x10m 4 phòng ngủ của gia đình anh Quý tại Hải Phòng.

Tổng quan 3D mẫu biệt thự 2 tầng 4 phòng ngủ phong cách hiện đại KKBTV207

Phối cảnh mặt tiền mẫu biệt thự 2 tầng hiện đại 4 phòng ngủ tại Hải Phòng KKBTV207

Mẫu biệt thự 2 tầng 4 phòng ngủ được thiết kế theo phong cách hiện đại nhưng vẫn mang trên mình vẻ đẹp gần gũi, thân thiện với đời sống sinh hoạt người Việt. Không gian mặt tiền rộng và thông thoáng với các hình khối kiến trúc cân đối, đồng đều. Phong cách kiến trúc hiện đại còn được thể hiện qua những đường nét chắc khỏe, dứt khoát. Khu vực tiền sảnh rộng rãi được lấy màu nâu của cửa gỗ tự nhiên làm điểm nhấn. Chất liệu gỗ tự nhiên thân thiện mang đến cho mẫu thiết kế biệt thự đẹp một diện mạo ấm cúng và gần gũi. Các cột trụ vuông vắn, chắc khỏe nâng đỡ phần mái sảnh đua rộng ra một cách tinh tế. Hệ thống đèn trang trí và đèn LED âm trần được bố trí dưới các phần mái không chỉ tăng cường ánh sáng mà còn mang đến vẻ đẹp lung linh cho mẫu biệt thự đẹp khi màn đêm buông xuống.

Phối cảnh góc nghiêng mẫu biệt thự 2 tầng hiện đại 4 phòng ngủ tại Hải Phòng KKBTV207

Hệ thống cửa phụ và cửa sổ của mẫu biệt thự hiện đại được sử dụng thiết kế khung nhôm kính bền đẹp, tiện nghi và sang trọng. Kính cường lực không chỉ không chỉ đảm bảo yếu tố an toàn mà còn là vật liệu kết nối không gian nhà với cảnh quan thiên nhiên bên ngoài, mang ánh sáng tự nhiên vào trong nhà đồng thời cung cấp tầm nhìn rộng rãi để các thành viên trong gia đình có thể ngắm nhìn khung cảnh bên ngoài một cách thuận lợi. Mẫu biệt thự hiện đại 4 phòng ngủ còn được trang trí bằng những đường kẻ lõm đẹp mắt và khỏe khoắn. Toàn bộ không gian ngoại thất sử dụng tone màu kem nhẹ nhàng làm tone màu chủ đạo, mang lại cảm giác dịu nhẹ và thoải mái cho người nhìn.

Phối cảnh góc nghiêng mẫu biệt thự 2 tầng hiện đại 4 phòng ngủ tại Hải Phòng KKBTV207

Mẫu biệt thự 2 tầng mái Nhật toát lên vẻ thanh thoát và nổi bật với hệ mái Nhật tựa như một chiếc ô lớn bảo vệ cho không gian nhà. Hệ mái Nhật được thiết kế với độ dốc vừa phải sau đó đổ bê tông và dán những viên ngói chồng lên nhau một cách đẹp mắt. Bên cạnh hệ mái Nhật, khoảng sân vườn rộng rãi và thông thoáng được quy hoạch một cách khoa học, hệ thống cây xanh và tiểu cảnh ở các góc sân mang đến không gian nghỉ dưỡng tuyệt vời cho các thành viên trong gia đình.

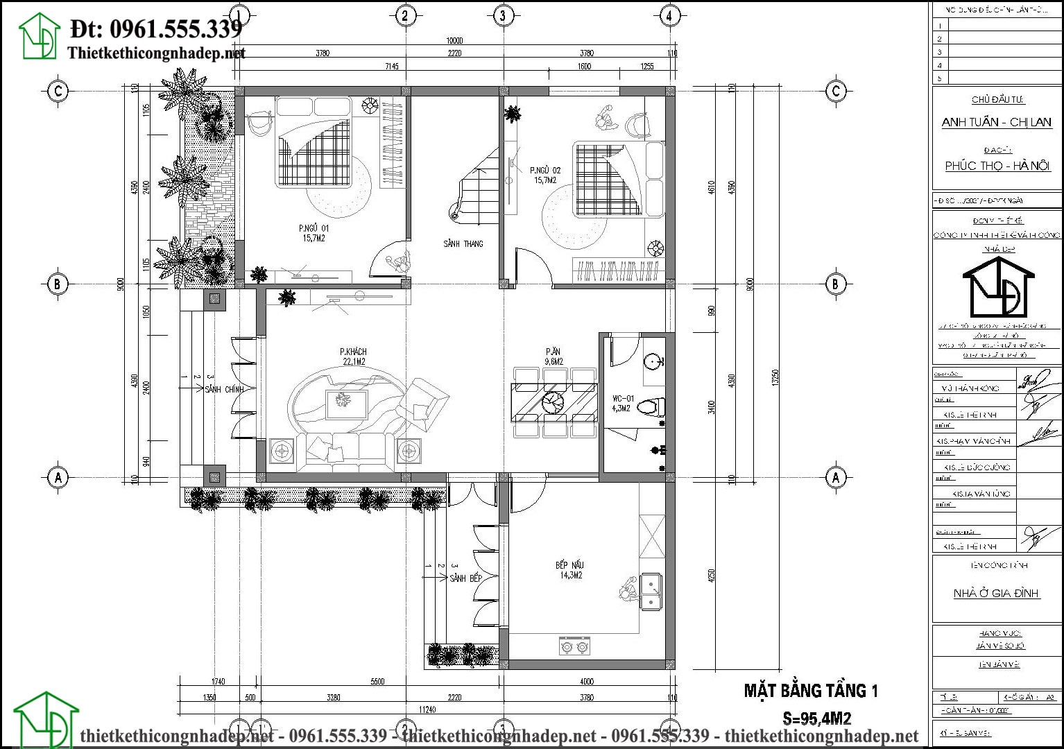
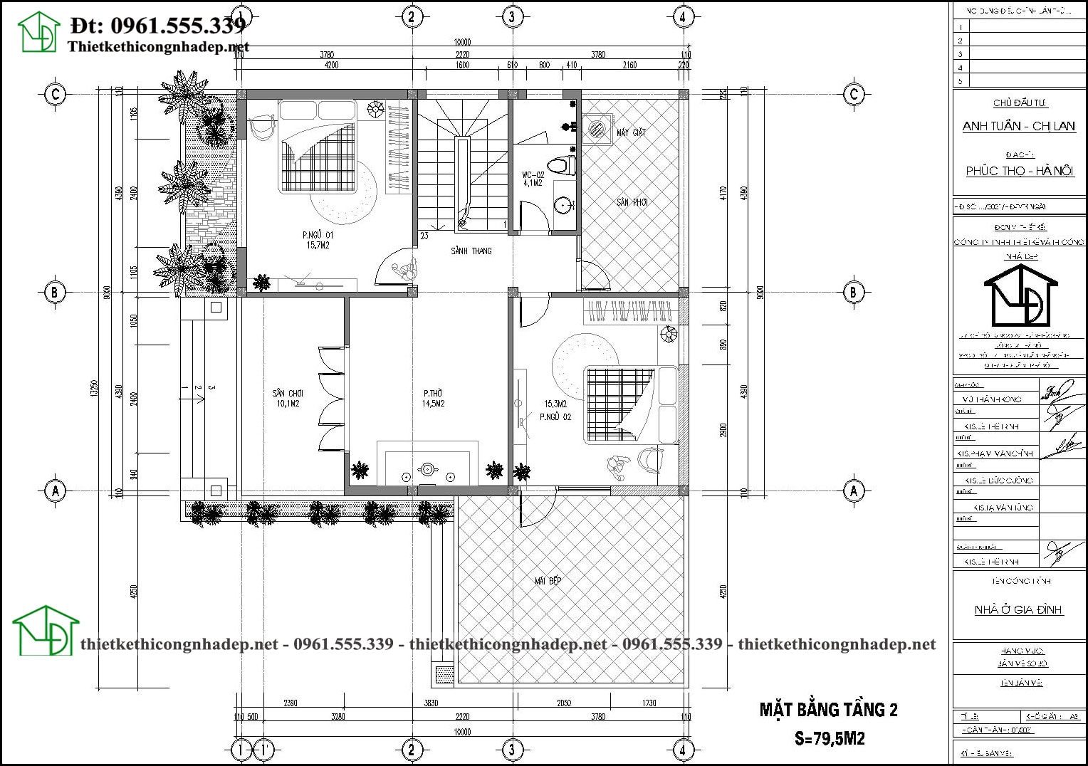
Mặt bằng công năng của mẫu biệt thự đẹp hiện đại 2 tầng 13x10m 4 phòng ngủ KKBTV207

Công năng hợp lý với 2 phòng ngủ rộng dãi tại tầng 1 mẫu KKBTV207

Tầng 1 của mẫu biệt thự đẹp được bố trí với 1 phòng khách, 1 phòng ăn cùng với 2 phòng ngủ, từ phía sảnh phụ bước vào là không gian phòng bếp. Nhà vệ sinh chung được đặt cạnh phòng bếp và phòng ăn. Khu vực tầng 2 được bố trí với 1 phòng thờ và 1 phòng ngủ. Phòng vệ sinh chung cùng với máy giặt được đặt cạnh khoảng sân phơi thông thoáng.

Nội thất và công năng được bố trí đơn giản

Trên đây là những thông tin và hình ảnh về mẫu biệt thự đẹp hiện đại 2 tầng 13x10m 4 phòng ngủ tại Hải Phòng. Hy vọng quý khách cảm thấy ấn tượng với mẫu biệt thự 2 tầng mái Nhật tuyệt đẹp này, nếu có nhu cầu thiết kế và xây dựng một căn biệt thự cho gia đình mình thì đừng quên liên hệ với các KTS dày dặn kinh nghiệm của Nhà đẹp để được tư vấn miễn phí nhé. 

Để lại một bình luận