Nhà cấp 4 mái bằng đã không còn xa lạ với nhiều người ở nông thôn Việt Nam. Bạn đang có ý định xây nhà nhưng chưa biết thiết kế như thế nào? Chúng tôi xin chia sẻ đến các bạn bản vẽ thiết kế nhà ống cấp 4 mái bằng ở nông thôn diện tích 120m giá rẻ để có được cái nhìn tổng quan nhất về ngôi nhà ống cấp 4 hiện đại. Cùng lắng nghe những chia sẻ trong bài viết dưới đây.
Nhà ống cấp 4 mái bằng là gì?
Nhà cấp 4 mái bằng có mặt ở khắp mọi nơi và phổ biến nhất hiện nay. Đất liền hay ngoài đảo xa, đồng bằng hay miền núi thì nhà cấp 4 mái bằng vẫn luôn được sử dụng và được sự quan tâm của nhiều người. Đa số những ngôi nhà trên nước ta đều là nhà cấp 4, có độ cao vừa phải, thuận tiện đi lại và chi phí tiết kiệm. Các loại hình nhà được phân chia thành 4 cấp, dựa theo số tầng và diện tích như sau:
- Nhà cấp 1 có chiều cao từ 20-29 tầng hoặc tổng diện tích sàn trên 10.000m2
- Nhà cấp 2 có chiều cao từ 9-19 tầng, tổng diện tích sàn trên 5.000m2
- Nhà cấp 3 có chiều cao từ 4-8 tầng, tổng diện tích sàn trên 1.000m2
- Nhà cấp 4 có chiều cao từ 1-3 tầng, tổng diện tích sàn dưới 1.000m2
Căn cứ vào kết cấu chịu lực của công trình thì nhà cấp 4 được quy định là có chiều cao từ 1 tầng trở xuống và được xây dựng trên diện tích nhỏ hơn 1.000m2 theo Thông tư số 03/2016/TT-BXD về phân cấp công trình.
Xu hướng xây nhà cấp 4 mái bằng hiện nay
Nhà mái bằng đang trở nên phổ biến bởi vẻ ngoài khang trang, lịch sự của nó. Xu hướng xây nhà mái bằng được mọi người ưa chuộng theo các tiêu chí sau:
Xây nhà mái bằng cấp 4 theo xu hướng hiện đại
Người xưa quan niệm rằng nhà cấp 4 là những căn nhà tồi tàn, thô sơ và không chắc chắn chỉ được xây dựng bằng gỗ, tre và mái làm từ rơm, rạ, lá cọ,… thì hiện nay nhà cấp 4 mái bằng được xây dựng đẹp và độc đáo hơn rất nhiều. Chất lượng của nhà cấp 4 mái bằng ngày càng được nâng cao, cải thiện phục vụ nhu cầu, thị hiếu của nhiều người.
Xây nhà mái bằng cấp 4 theo xu hướng tiện nghi
Tiện nghi là yếu tố vô cùng quan trọng khi bạn quyết định xây một ngôi nhà. Tiện nghi ở đây nói đến vị trí đất cần phải đẹp, rộng, thuận tiện cho việc đi lại. Tiếp đó là sự bố trí các phòng và không gian trong nhà. Các khu cần có sự liên kết chặt chẽ với nhau, sinh hoạt dễ dàng và có đủ không gian sống thoải mái.
Xây nhà mái bằng cấp 4 theo xu hướng tiết kiệm chi phí
Chi phí xây nhà hợp lý chính là lý do nhà cấp 4 mái bằng được xây dựng nhiều đến vậy. Xây một căn nhà ống cấp 4 giá rẻ mái bằng tiện nghi, đa dạng chi phí trung bình chỉ mất từ 700-800 triệu đồng, khá hợp lý so với việc xây nhà cao tầng có đầy đủ công năng như vậy. Bạn sẽ tiết kiệm và để dành tiền cho việc trang trí nội thất nhiều hơn và bổ sung những vật dụng cần thiết.
Chi tiết về bản vẽ thiết kế và ngoại thất 3d nhà cấp 4 mái bằng ở nông thôn diện tích 120m giá rẻ
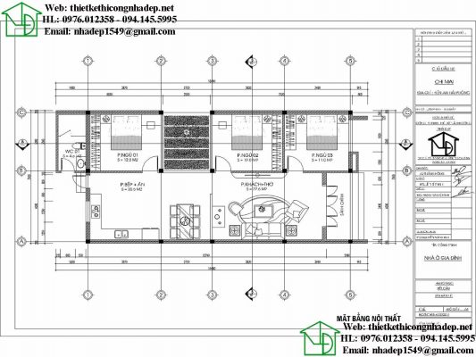
Với diện tích 120m2, bạn sẽ có nhiều sự lựa chọn cho thiết kế của ngôi nhà. Việc lựa chọn xây dựng nhà cấp 4 ở nông thôn mái bằng cần có một bản vẽ chi tiết, giới thiệu với các bạn về mẫu vẽ tiện nghi dưới đây.

Các phòng được thiết kế và đặt cạnh nhau tùy theo diện tích và tiện nghi sử dụng. Từ sảnh chính bước vào là không gian phòng khách rộng và thoáng, diện tích 22.5m2 là nơi tiếp khách, uống nước và trò chuyện buổi tối của cả gia đình. Tiếp đến là bàn ăn, bàn ăn được để riêng một diện tích không cùng với nhà bếp để thoáng khí và sạch sẽ hơn.
Khu vực bếp ăn có cửa phụ, phục vụ cho những hôm nhà đông người hoặc có khách đến chơi. Cửa phụ còn có tác dụng thông khí, thoát mùi từ nhà bếp ra bên ngoài. Nhà vệ sinh ngăn sách phía ngoài, ngăn mùi và tiện ích. Các phòng ngủ có diện tích khác nhau tùy theo nhu cầu sử dụng của từng người và từng lứa tuổi.
Tổng quan ngoại cảnh 3d đẹp mắt của mẫu nhà cấp 4 mái bằng 120m
Thiết kế nội thất đẹp và tiện nghi như vậy thì nội thất phía ngoài cũng cần khang trang, sạch sẽ tương ứng. Nhà mái bằng cấp 4 chủ yếu được tạo từ những góc vuông và màu sắc trầm hơn. Cột nhà lát đá tạo điểm nhấn mạnh mẽ cho cả ngôi nhà.

Các góc nghiêng trái, phải giúp bạn hình dung rõ hơn ngoại thất phía ngoài căn nhà đẹp và trong sạch. Không gian sống xanh, thoáng mát là nơi lý tưởng của tất cả mọi người khi sống ở nông thôn.

Khi bắt đầu thi công cũng không khó khăn, người thợ cần cẩn thận và tỉ mỉ để tránh sai sót. Các yếu tố đòi hỏi kỹ thuật không nhiều nên thời gian thi công khá nhanh, tiết kiệm chi phí tiền công thợ.

Hy vọng với bài viết trên bạn đã lựa chọn được bản vẽ thiết kế nhà cấp 4 mái bằng ở nông thôn diện tích 120m giá rẻ để xây dựng một căn nhà cho gia đình. Bắt tay vào thi công ngay hôm nay, làm chủ ngôi nhà, làm chủ nội thất và không gian sống đẹp. Chúc các bạn thành công!
Xem thêm các mẫu tương tự:
- Đánh giá mẫu nhà cấp 4 mái bằng ở nông thôn diện tích 8×15 siêu đẹp KKNC4075
- Tìm hiểu mẫu nhà cấp 4 mái bằng ở nông thôn 8x9m 3 phòng ngủ KKNC4074
- Review các mẫu thiết kế nhà cấp 4 mái bằng ở nông thôn đẹp – hợp lý
