Tổng hợp mẫu nhà cấp 4 chữ U mái Nhật đẹp mê ly

Đẹp mắt, sáng tạo, phù hợp với gu thẩm mỹ hiện đại, mẫu nhà cấp 4 chữ U mái Nhật từ lâu đã được nhiều gia chủ yêu thích, lựa chọn mẫu nhà này để xây dựng nên tổ ấm của gia đình mình. Cùng Kakoi lên đường tìm hiểu xem mẫu nhà chữ U mái Nhật một tầng là gì và những ngôi nhà mẫu cực đẹp, ấn tượng và độc đáo của dáng nhà đầy sáng tạo này.

Nhà cấp 4 chữ U mái Nhật là gì?

Đúng như tên gọi của chúng, nhà cấp 4 chữ u mái Nhật có hình chữ U khi nhìn từ trên xuống, được thiết kế phần mái dạng mái Nhật – loại mái có độ dốc thấp, mang đậm đặc trưng của xứ sở mặt trời mọc, hội tụ những ưu điểm nổi bật của mẫu nhà cấp 4 mái Nhật đơn giản.

Mẫu nhà này có tính ứng dụng cao, được sử dụng rộng rãi ở các vùng nông thôn hay ngoại ô – nơi có quỹ đất rộng. Mẫu nhà này không chỉ có thiết kế đơn giản, tiết kiệm chi phí xây dựng mà còn khiến căn nhà sáng sủa, tối ưu hóa mọi không gian, đón nắng tốt.

Nhà cấp 4 chữ U mái Nhật có gara.
Mẫu nhà cấp 4 chữ u mái Nhật sang trọng, hiện đại, ấn tượng.

Các không gian của ngôi nhà dễ dàng kết nối với nhau, tuy nhiên vẫn phân tách rõ ràng từng công năng, hướng đến không gian mở, tạo cảm giác thoải mái, dễ chịu và tận hưởng với mọi thành viên trong gia đình. Do đó, các vùng nông thôn hoặc ngoại ô, khi có một diện tích đất rộng lớn, gia chủ thường nghĩ tới dáng nhà chữ U một tầng mái Nhật bởi tính thẩm mỹ cao, không gian thoáng mát và công năng tuyệt vời, chi phí xây dựng hợp lý mà nó mang lại.

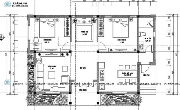
Bản vẽ nhà cấp 4 chữ U mái Nhật 2 phòng ngủ.
Bản vẽ nhà cấp 4 mái Nhật chữ U đơn giản, đầy đủ công năng.

Khám phá mẫu nhà cấp 4 chữ U mái Nhật đẹp mê ly

Mẫu nhà chữ u cấp 4 đa dạng nhiều phong cách thiết kế, mỗi một mẫu nhà lại mang đến một vẻ đẹp và điểm nhấn riêng. Phù hợp với thị hiếu thẩm mỹ, mang đậm phong cách và đáp ứng được mong muốn của gia chủ, những mẫu nhà cấp 4 chữ u đẹp thiết kế một tầng dưới đây đến từ Kakoi đảm bảo sẽ khiến bạn trầm trồ thích thú khi tham khảo, làm bước đệm hoàn hảo cho mong muốn xây dựng mẫu nhà này của bạn.

Mẫu nhà cấp 4 chữ U mái Nhật 4 phòng ngủ

Nhà cấp 4 chữ u 4 phòng ngủ là mẫu nhà lớn với công năng đầy đủ gồm: phòng khách, phòng bếp, 4 phòng ngủ, 1- 4 nhà vệ sinh. Mẫu nhà này phù hợp với gia đình lớn, có từ 4 – 8 thành viên.

Nhà cấp 4 chữ U 4 phòng ngủ ấn tượng.
Nhà cấp 4 mái Nhật 4 phòng ngủ tối giản, chi phí hợp lý.
Bản vẽ nhà cấp 4 chữ U mái Nhật 4 phòng ngủ
Bản vẽ nhà cấp 4 chữ U 4 phòng ngủ mái nhật khoa học, hợp lý.

Thiết kế chữ U khiến không gian căn nhà trở nên thông thoáng, các phòng được liên kết với nhau, tận dụng tối đa được ánh sáng tự nhiên và gió trời. Thiết kế mái Nhật mềm mại, tạo cảm giác ấm cúng, gần gũi cho các thành viên trong gia đình. Trên bản vẽ nhà chữ U một tầng trên, phòng khách được thiết kế nằm ở giữa chữ U, 4 phòng ngủ được sắp xếp cân đối ở 2 phía của phòng khách, tạo nên sự cân đối, tạo nên sự sum vầy, ấm cúng cho không gian sinh hoạt chung của gia đình là phòng khách.

Mẫu nhà cấp 4 chữ U mái Nhật 3 phòng ngủ

Có số phòng ngủ ít hơn nhưng mẫu nhà này vẫn khá đồ sộ và đầy đủ công năng, đáp ứng được những nhu cầu sinh hoạt của gia chủ. Mẫu nhà này được thiết kế khá “nịnh mắt” nhờ kết cấu cân đối, sáng sủa, hiện đại.

Nhà cấp 4 chữ U mái Nhật 3 phòng ngủ.
Mẫu nhà cấp 4 chữ u 3 phòng ngủ đơn giản, nhỏ xinh.

Phần chính của ngôi nhà – cửa chính được thiết kế cùng sảnh ở phần lõm của chữ U với chất liệu gỗ màu trầm làm tăng sự sang trọng của ngôi nhà, cùng với đó, cánh cửa này cũng là điểm nhấn khi nổi bật hoàn toàn với tone màu sáng của cả căn nhà. Đây là một sự kế hợp kiến trúc hài hòa giữa hiện đại mới mẻ với quen thuộc, khuôn mẫu; giữa sang trọng, tinh tế với đơn giản, nhẹ hàng. Cùng với đó, hai cửa sổ ở mặt tiền của căn nhà được thiết kế từ chất liệu kính với viền trắng khiến căn nhà sáng sủa và hiện đại, tạo nên sự đối lập khá thú vị với phần cửa chính cũng nhìn thấy ở chính diện.

Mẫu nhà một tầng chữ U mái Nhật đơn giản, sang trọng

Theo xu thế hiện nay, dù mẫu nhà được xây dựng ở khu vực nào, thành thị hay nông thôn, đi theo lối thiết kế nào,… thì sự đơn giản để tiết kiệm chi phí và thời gian xây dựng cùng vẻ đẹp hoàn hảo, tối giản nhưng sang trọng cũng là điều mà chủ đầu tư nào cũng muốn hướng tới.

Nhà cấp 4 chữ U mái Nhật sang trọng.
Ngôi nhà sang trọng, không quá cầu kỳ hình chữ U mái Nhật, 1 tầng.
Nhà cấp 4 chữ U mái Nhật có gác lửng
Mẫu nhà chữ U đẹp, pha trộn giữa lối kiến trúc quen thuộc và mới lạ.

Kiến trúc vuông vức, đồ sộ cùng phần gác lửng mái Nhật khiến hai mẫu nhà như một tòa thành kiên cố và vững chãi. Phần lõm chữ U khá rộng, thiết kế 3 gian khiến căn nhà mang nét truyền thống, quen thuộc và đầy ấn tượng, thu hút mọi ánh nhìn. Mẫu nhà đối xứng, cân bằng, làm tăng độ hoàn hảo và thuận mắt. Màu sơn cũng quyết định đến sự sang trọng và sáng sủa của ngôi nhà, màu sơn càng sáng, đơn giản và phối màu tốt sẽ càng làm tăng nên đẹp đẹp sang trọng, thượng lưu cho toàn căn nhà.

Không còn quá xa lạ nhưng nhà cấp 4 chữ U mái Nhật vẫn là mẫu nhà sang trọng, đẹp mắt, ấn tượng và đầy sáng tạo. Lựa chọn xây mẫu nhà này cho gia đình, bạn sẽ được tận hưởng một không gian sống nhiều ánh sáng và gió trời, thoải mái, ấm cúng, hiện đại.